Budapest, XXI. kerület Rézmű utca
Rézmű utca, kiadó 4000 m2 -es tégla építésű lakás
Kiadó nagyméretű, sokoldalúan hasznosítható ingatlan Budapest XXI. kerületében, Csepelen
Budapest XXI. kerületében kiadó egy több mint 4000 m² alapterületű, sokféle üzleti vagy intézményi tevékenységre alkalmas ingatlan. A komplexum nagy belső terekkel, modern gépészettel és jelentős parkolókapacitással rendelkezik.
A telken kb. 40 parkolóhely található, amelyek konténeres teherautók fogadására is alkalmasak. Az ingatlan területén egy szabványos kosárlabdapálya is rendelkezésre áll.
Az épület 3 méternél magasabb belmagassággal, valamint vadonatúj hűtő–fűtő klímaberendezésekkel felszerelt. Az infrastruktúra ipari árammal és ipari vízcsatlakozással rendelkezik, ipari/kereskedelmi díjszabással.
A helyiségek jelentős része kb. 28 m²-es stúdió jellegű szobákra lett kialakítva, amelyek saját zuhanyzóval és WC-vel rendelkeznek, így az ingatlan kiválóan alkalmas munkásszállás, kollégium vagy vendégház működtetésére is.
Felhasználási lehetőségek
- vállalati központ vagy irodaház
- logisztikai és disztribúciós központ
- dolgozói kollégium vagy munkásszállás
- képzési vagy oktatási intézmény
- konferencia- és rendezvényközpont
- raktár vagy feldolgozóüzem
- művészeti vagy kreatív központ
- privát klub vagy közösségi tér
Az ingatlan főbb részei
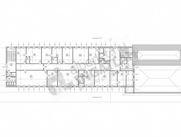
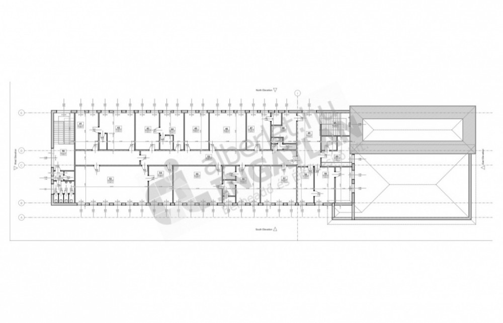
Alsó szint
Az alsó szinten található egy kb. 80 m²-es éttermi konyha, amely melegkonyhai engedéllyel és ipari szellőztető rendszerrel rendelkezik. Korábban a cég dolgozóinak étkezdéjeként működött, de elvitelre és ételkiszállításra is alkalmas.
Az alsó szint egyik szárnya kb. 400 m², amely többek között az alábbi helyiségeket foglalja magában:
- recepció
- monitoring szoba
- gépészeti helyiségek
- éttermi rész
- irodák és tárgyalók
- pénzügyi osztály helyiségei
- rekreációs terület
- raktárak
- férfi és női mosdók
- személyzeti öltözők és WC-k
Az alsó szint másik szárnya kb. 600 m², amely vendégszobákká lett kialakítva:
- minden szobához saját zuhanyzó és WC tartozik
- mosógép be- és lefolyó kiállás
- jó természetes fényviszonyok
- arányos elrendezés
- alap bútorok és berendezések
- közös mosókonyha és további mosdók
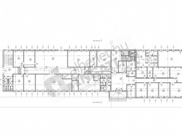
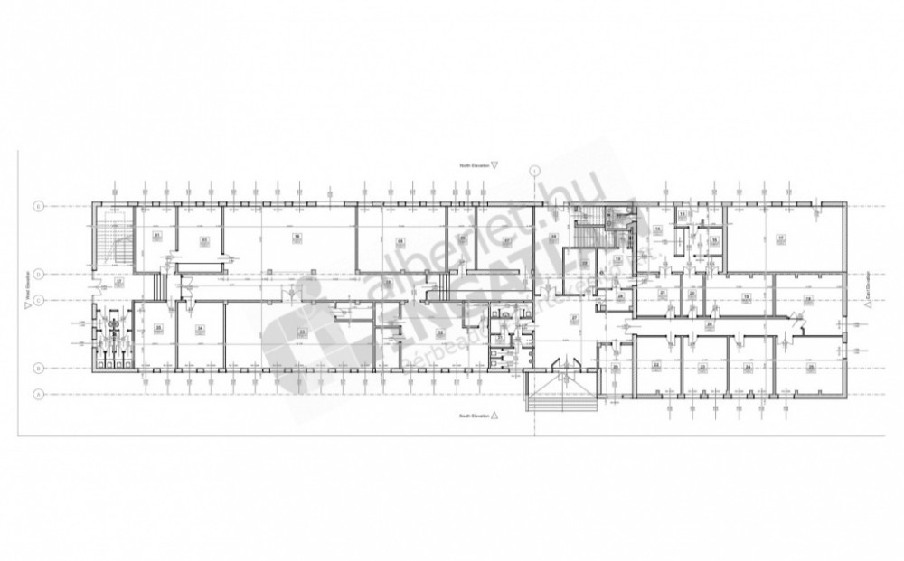
Emelet
Az emelet több mint 1000 m² alapterületű, és kb. 30 szobára van felosztva. Jelenleg személyzeti kollégiumként használják, de könnyen átalakítható vendégházzá vagy rövid távú szálláshely-kialakításra.
- minden szobában mosógép kiállás
- kiváló természetes megvilágítás
- arányos elrendezés
- alap bútorozás és berendezések
Az ingatlan nagy mérete és rugalmas kialakítása miatt számos üzleti, ipari vagy intézményi célra alkalmas, akár komplex vállalati központként vagy több funkciós létesítményként is hasznosítható.
Augusztustól kiadó.
Budapest XXI. kerületében kiadó egy több mint 4000 m² alapterületű, sokféle üzleti vagy intézményi tevékenységre alkalmas ingatlan. A komplexum nagy belső terekkel, modern gépészettel és jelentős parkolókapacitással rendelkezik.
A telken kb. 40 parkolóhely található, amelyek konténeres teherautók fogadására is alkalmasak. Az ingatlan területén egy szabványos kosárlabdapálya is rendelkezésre áll.
Az épület 3 méternél magasabb belmagassággal, valamint vadonatúj hűtő–fűtő klímaberendezésekkel felszerelt. Az infrastruktúra ipari árammal és ipari vízcsatlakozással rendelkezik, ipari/kereskedelmi díjszabással.
A helyiségek jelentős része kb. 28 m²-es stúdió jellegű szobákra lett kialakítva, amelyek saját zuhanyzóval és WC-vel rendelkeznek, így az ingatlan kiválóan alkalmas munkásszállás, kollégium vagy vendégház működtetésére is.
Felhasználási lehetőségek
- vállalati központ vagy irodaház
- logisztikai és disztribúciós központ
- dolgozói kollégium vagy munkásszállás
- képzési vagy oktatási intézmény
- konferencia- és rendezvényközpont
- raktár vagy feldolgozóüzem
- művészeti vagy kreatív központ
- privát klub vagy közösségi tér
Az ingatlan főbb részei
Alsó szint
Az alsó szinten található egy kb. 80 m²-es éttermi konyha, amely melegkonyhai engedéllyel és ipari szellőztető rendszerrel rendelkezik. Korábban a cég dolgozóinak étkezdéjeként működött, de elvitelre és ételkiszállításra is alkalmas.
Az alsó szint egyik szárnya kb. 400 m², amely többek között az alábbi helyiségeket foglalja magában:
- recepció
- monitoring szoba
- gépészeti helyiségek
- éttermi rész
- irodák és tárgyalók
- pénzügyi osztály helyiségei
- rekreációs terület
- raktárak
- férfi és női mosdók
- személyzeti öltözők és WC-k
Az alsó szint másik szárnya kb. 600 m², amely vendégszobákká lett kialakítva:
- minden szobához saját zuhanyzó és WC tartozik
- mosógép be- és lefolyó kiállás
- jó természetes fényviszonyok
- arányos elrendezés
- alap bútorok és berendezések
- közös mosókonyha és további mosdók
Emelet
Az emelet több mint 1000 m² alapterületű, és kb. 30 szobára van felosztva. Jelenleg személyzeti kollégiumként használják, de könnyen átalakítható vendégházzá vagy rövid távú szálláshely-kialakításra.
- minden szobában mosógép kiállás
- kiváló természetes megvilágítás
- arányos elrendezés
- alap bútorozás és berendezések
Az ingatlan nagy mérete és rugalmas kialakítása miatt számos üzleti, ipari vagy intézményi célra alkalmas, akár komplex vállalati központként vagy több funkciós létesítményként is hasznosítható.
Augusztustól kiadó.
Alapterület 4 000 m2
Állapot Felújított
Berendezés Berendezett
Emelet 1
Rezsi költség 50 000 Ft/hó
Energiatanúsítvány B
Fűtés Villany
Kaució 2 hónap
Kerület XXI
Kerületrész Csepel-Gyártelep
Kilátás Utcai, világos
Külön nyíló szobák 13
Légkondícionált Igen
Lift Nincs
Minimum bérleti idő 12 hónap
Összes szobaszám 20
Parkolás Telken parkoló
Referens Szabó Péter (+36709355765)
Szobaszám 20
Település Budapest
Üzenetküldés
Küldjön üzenetet a kapcsolattartónak erre a hirdetésre vonatkozóan




























