Budapest, XIII. kerület Taksony utca
Taksony utca, kiadó 48 m2 -es tégla építésű lakás
Modern, erkélyes lakás kiadó a XIII. kerület frekventált részén, amely a Green Court I. társasházban található.**
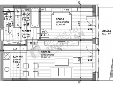
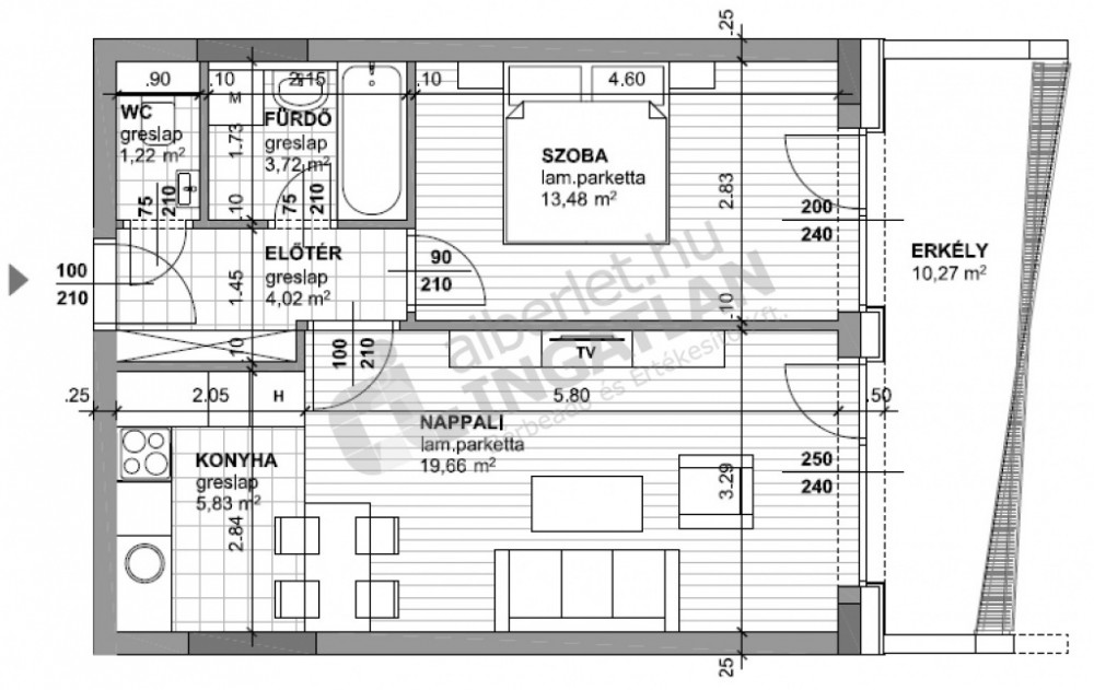
Azonnal költözhető, hosszú távra kiadó egy világos, 48 m²-es, amerikai konyhás nappalival és egy külön hálószobával rendelkező lakás a Taksony utcában, egy új-építésű társasház 5. emeletén. A lakás a belső kertre néz, csendes, és egy 10 m²-es erkély kapcsolódik mindkét szobához.
Az ingatlan teljesen gépesített, modern konyhával (indukciós főzőlap, sütő, elszívó, mosogatógép, mikró, beépített hűtő). A fürdőszoba kádas, a WC külön helyiségben található. A lakás klimatizált, elektromos redőnyökkel felszerelt.
Az épületben 24 órás portaszolgálat és két lift működik, a fűtés házközponti, egyedi mérőórákkal. A lakáshoz kötelezően bérelendő egy teremgarázs-hely is, havi 30.000 Ft-ért.
Bérleti díj: 270.000,- FT/hó
Költözhető: azonnal, 2 havi kaució + 1 havi bérleti díj + közjegyzői kiköltözési nyilatkozat ellenében
Közös költség: 27.030 Ft/hó
Dohányzás és kisállattartás nem megengedett
Minimum bérleti idő: 12 hónap
Beköltözés feltétele: 2 havi kaució, 1 havi bérleti díj és közjegyzői nyilatkozat
A környék kiváló infrastruktúrával rendelkezik: M3 metró, villamos, busz és troli néhány perc távolságra. A Lehel piac, a Duna-part, a Westend és több szolgáltatás is a közelben található.
Azonnal költözhető, hosszú távra kiadó egy világos, 48 m²-es, amerikai konyhás nappalival és egy külön hálószobával rendelkező lakás a Taksony utcában, egy új-építésű társasház 5. emeletén. A lakás a belső kertre néz, csendes, és egy 10 m²-es erkély kapcsolódik mindkét szobához.
Az ingatlan teljesen gépesített, modern konyhával (indukciós főzőlap, sütő, elszívó, mosogatógép, mikró, beépített hűtő). A fürdőszoba kádas, a WC külön helyiségben található. A lakás klimatizált, elektromos redőnyökkel felszerelt.
Az épületben 24 órás portaszolgálat és két lift működik, a fűtés házközponti, egyedi mérőórákkal. A lakáshoz kötelezően bérelendő egy teremgarázs-hely is, havi 30.000 Ft-ért.
Bérleti díj: 270.000,- FT/hó
Költözhető: azonnal, 2 havi kaució + 1 havi bérleti díj + közjegyzői kiköltözési nyilatkozat ellenében
Közös költség: 27.030 Ft/hó
Dohányzás és kisállattartás nem megengedett
Minimum bérleti idő: 12 hónap
Beköltözés feltétele: 2 havi kaució, 1 havi bérleti díj és közjegyzői nyilatkozat
A környék kiváló infrastruktúrával rendelkezik: M3 metró, villamos, busz és troli néhány perc távolságra. A Lehel piac, a Duna-part, a Westend és több szolgáltatás is a közelben található.
Alapterület 48 m2
Berendezés Üres
Közös költség 27 000 Ft/hó
Emelet 6
Rezsi költség 15 000 Ft/hó
Energiatanúsítvány A+
Fürdőszobák 1
Fűtés Házközp. mérőórával
Kaució 2 hónap
Kerület XIII
Kerületrész Angyalföld - Lőportárdűlő
Kilátás Udvari, világos
Kisállatbarát Nem
Külön nyíló szobák 1
Lift Van
Minimum bérleti idő 12 hónap
Összes szobaszám 2
Parkolás Mélygarázs
Referens Márton Andrea (+36703768970)
Szobaszám 2
Település Budapest
Tájolás Dél-Kelet
Üzenetküldés
Küldjön üzenetet a kapcsolattartónak erre a hirdetésre vonatkozóan













