Budapest, XIII. kerület Röppentyű utca
Röppentyű utca, kiadó 43 m2 -es tégla építésű lakás
13. kerületben, a Röppentyű utcában található Divinus Társasházban kínálunk bérlésre egy 1. emeleti, nappali + 1 hálószobás, kiváló állapotú lakást.
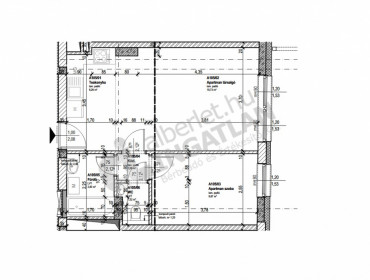
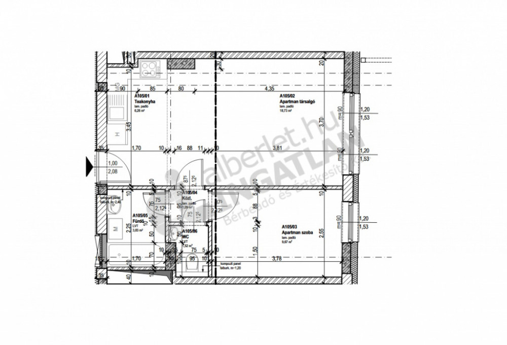
A 43 nm alapterületű ingatlan kialakítása átgondolt, terei világosak és harmonikusak, így valódi nyugalmat és kényelmet biztosít a mindennapokban.
A lakás bútorozott és gépesített. A modern konyha sütővel, főzőlappal, hűtővel, szagelszívóval és mosogatógéppel felszerelt, a talásban található mosógép és klímaberendezés is.
Az ingatlan minimum 1 évre bérelhető, közjegyző által hitelesített bérleti szerződéssel.
A bérlés feltétele 2,5 havi kaució és munkáltatói jövedelemigazolás bemutatása.
Kisállattal történő költözés esetén 3 havi kaució szükséges.
Az épület mélygarázsában különböző méretű parkolóhelyek bérelhetők havi 30 000 - 40 000 forintos bérleti díjért, emellett zárható tárolóhelyiség is igénybe vehető 2–5 négyzetméteres méretben, melynek havi díja 15 000 - 30 000 forint.
A lakás a képeken látható, kifogástalan állapotban, berendezve és teljesen gépesítve kerül átadásra.
A Divinus Lakópark letisztult, rendezett környezetet kínál, ahol a városi élet kényelme és a nyugodt lakhatás tökéletes egyensúlyban van. A környék infrastruktúrája kiváló, a közelben megtalálhatók üzletek, bevásárlóközpontok, éttermek, kávézók, valamint a tömegközlekedési kapcsolatok is gyors és kényelmes elérést biztosítanak a város bármely pontja felé. A zöldfelületek és sétára alkalmas környezet tovább növelik az itt élők komfortérzetét, ezért az ingatlan ideális választás pároknak, családoknak, illetve azok számára, akik igényes, mégis nyugodt otthont keresnek.
**ENGLISH**
In the 13th district, on Röppentyű Street, we offer for rent a 1st floor, living room + 1 bedroom apartment in excellent condition.
The 43 sqm property has a well-thought-out design, its spaces are bright and harmonious, thus providing real peace and comfort in everyday life.
The apartment is furnished and mechanized. The modern kitchen is equipped with an oven, hob, refrigerator, extractor hood and dishwasher, and there is also a washing machine and air conditioning in the basement.
The property can be rented for a minimum of 1 year, with a notarized rental contract.
The condition for renting is a 2.5 month deposit and presentation of an employer's income certificate.
In case of moving with a pet, a 3 month deposit is required.
In the underground garage of the building, parking spaces of various sizes can be rented for a monthly rent of 30,000 - 40,000 forints, and a lockable storage room of 2-5 square meters is also available, the monthly fee of which is 15,000 - 30,000 forints.
The apartment is in impeccable condition, furnished and fully mechanized, as shown in the pictures.
Divinus Lakópark offers a clean, tidy environment, where the comfort of city life and peaceful living are in perfect balance. The infrastructure of the area is excellent, there are shops, shopping centers, restaurants, cafes nearby, and public transport connections provide quick and convenient access to any point of the city. The green spaces and walkable environment further increase the comfort of those living here, which is why the property is an ideal choice for couples, families, and those who are looking for a sophisticated yet peaceful home.
A 43 nm alapterületű ingatlan kialakítása átgondolt, terei világosak és harmonikusak, így valódi nyugalmat és kényelmet biztosít a mindennapokban.
A lakás bútorozott és gépesített. A modern konyha sütővel, főzőlappal, hűtővel, szagelszívóval és mosogatógéppel felszerelt, a talásban található mosógép és klímaberendezés is.
Az ingatlan minimum 1 évre bérelhető, közjegyző által hitelesített bérleti szerződéssel.
A bérlés feltétele 2,5 havi kaució és munkáltatói jövedelemigazolás bemutatása.
Kisállattal történő költözés esetén 3 havi kaució szükséges.
Az épület mélygarázsában különböző méretű parkolóhelyek bérelhetők havi 30 000 - 40 000 forintos bérleti díjért, emellett zárható tárolóhelyiség is igénybe vehető 2–5 négyzetméteres méretben, melynek havi díja 15 000 - 30 000 forint.
A lakás a képeken látható, kifogástalan állapotban, berendezve és teljesen gépesítve kerül átadásra.
A Divinus Lakópark letisztult, rendezett környezetet kínál, ahol a városi élet kényelme és a nyugodt lakhatás tökéletes egyensúlyban van. A környék infrastruktúrája kiváló, a közelben megtalálhatók üzletek, bevásárlóközpontok, éttermek, kávézók, valamint a tömegközlekedési kapcsolatok is gyors és kényelmes elérést biztosítanak a város bármely pontja felé. A zöldfelületek és sétára alkalmas környezet tovább növelik az itt élők komfortérzetét, ezért az ingatlan ideális választás pároknak, családoknak, illetve azok számára, akik igényes, mégis nyugodt otthont keresnek.
**ENGLISH**
In the 13th district, on Röppentyű Street, we offer for rent a 1st floor, living room + 1 bedroom apartment in excellent condition.
The 43 sqm property has a well-thought-out design, its spaces are bright and harmonious, thus providing real peace and comfort in everyday life.
The apartment is furnished and mechanized. The modern kitchen is equipped with an oven, hob, refrigerator, extractor hood and dishwasher, and there is also a washing machine and air conditioning in the basement.
The property can be rented for a minimum of 1 year, with a notarized rental contract.
The condition for renting is a 2.5 month deposit and presentation of an employer's income certificate.
In case of moving with a pet, a 3 month deposit is required.
In the underground garage of the building, parking spaces of various sizes can be rented for a monthly rent of 30,000 - 40,000 forints, and a lockable storage room of 2-5 square meters is also available, the monthly fee of which is 15,000 - 30,000 forints.
The apartment is in impeccable condition, furnished and fully mechanized, as shown in the pictures.
Divinus Lakópark offers a clean, tidy environment, where the comfort of city life and peaceful living are in perfect balance. The infrastructure of the area is excellent, there are shops, shopping centers, restaurants, cafes nearby, and public transport connections provide quick and convenient access to any point of the city. The green spaces and walkable environment further increase the comfort of those living here, which is why the property is an ideal choice for couples, families, and those who are looking for a sophisticated yet peaceful home.
Alapterület 43 m2
Berendezés Berendezett
Emelet 1
Fűtés Házközp. mérőórával
Kaució 3 hónap
Kertkapcsolat Nem
Kerület XIII
Kilátás Utcai, világos
Külön WC Igen
Légkondícionált Igen
Lift Van
Minimum bérleti idő 12 hónap
Összes szobaszám 2
Parkolás Parkoló övezet
Referens Legény Imre (+36702500001)
Szobaszám 2
Település Budapest
Üzenetküldés
Küldjön üzenetet a kapcsolattartónak erre a hirdetésre vonatkozóan










