Budapest, VII. kerület Murányi utca
Murányi utca, kiadó 68 m2 -es tégla építésű lakás
Murányi utcában kiadó loft stílusú, napos, saroklakás a Városliget közelében – VII. kerület
Budapest VII. kerületének kedvelt részén, Erzsébetvárosban, a Városliget közvetlen közelében hosszú távra kiadó egy frissen felújított, 68 m²-es, 2. emeleti, különleges hangulatú loft stílusú saroklakás.
A lakás rendkívül tágas és világos, nagyvonalú terekkel, két utcára néző ablakokkal, valamint 3 méteres belmagassággal, amely tovább növeli a térérzetet.
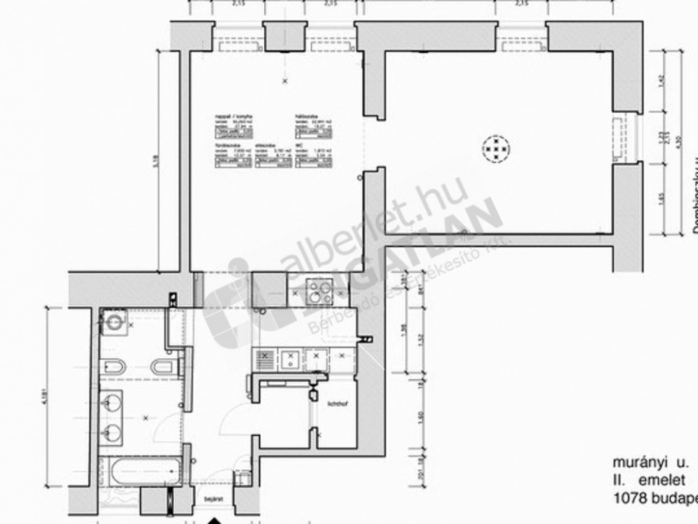
Elrendezés:
két egybenyitott szoba + konyha
előszoba
fürdőszoba
kis tároló (igény esetén külön WC-vé alakítható)
A lakás bútorozatlan, ugyanakkor gépesített:
tűzhely
mosógép
mosogatógép
kombinált hűtőszekrény
Műszaki jellemzők:
egyedi mérőórák
kombi gáz cirkófűtés
alacsony rezsiköltség
A lakás azonnal költözhető.
Bérlés feltételei:
2 havi bérleti díjnak megfelelő kaució
közjegyzői kiköltözési nyilatkozat
Ideális választás azok számára, akik egy igényes, karakteres, belvárosi otthont keresnek kiváló elhelyezkedéssel és remek közlekedéssel.
Budapest VII. kerületének kedvelt részén, Erzsébetvárosban, a Városliget közvetlen közelében hosszú távra kiadó egy frissen felújított, 68 m²-es, 2. emeleti, különleges hangulatú loft stílusú saroklakás.
A lakás rendkívül tágas és világos, nagyvonalú terekkel, két utcára néző ablakokkal, valamint 3 méteres belmagassággal, amely tovább növeli a térérzetet.
Elrendezés:
két egybenyitott szoba + konyha
előszoba
fürdőszoba
kis tároló (igény esetén külön WC-vé alakítható)
A lakás bútorozatlan, ugyanakkor gépesített:
tűzhely
mosógép
mosogatógép
kombinált hűtőszekrény
Műszaki jellemzők:
egyedi mérőórák
kombi gáz cirkófűtés
alacsony rezsiköltség
A lakás azonnal költözhető.
Bérlés feltételei:
2 havi bérleti díjnak megfelelő kaució
közjegyzői kiköltözési nyilatkozat
Ideális választás azok számára, akik egy igényes, karakteres, belvárosi otthont keresnek kiváló elhelyezkedéssel és remek közlekedéssel.
Alapterület 68 m2
Állapot Felújított
Berendezés Üres
Közös költség 23 000 Ft/hó
Emelet 2
Rezsi költség 15 000 Ft/hó
Energiatanúsítvány C
Fűtés Cirkó
Kaució 2 hónap
Kerület VII
Kerületrész Külső-Erzsébetváros
Kilátás Utcai
Kisállatbarát Nem
Légkondícionált Nem
Lift Nincs
Minimum bérleti idő 12 hónap
Összes szobaszám 2
Parkolás Parkoló övezet
Referens Szabó Péter (+36709355765)
Szobaszám 2
Település Budapest
Üzenetküldés
Küldjön üzenetet a kapcsolattartónak erre a hirdetésre vonatkozóan


















