Budapest, VI. kerület Ó utca
Ó utca, kiadó 162 m2 -es tégla építésű lakás
Kiváló helyen, az Ó utcában kiadó egy 5 szobás lakás!
Budapesten a VII. kerületben, az Arany János utcai metrómegálló közelében, az Ó utcában, egy világos, jó elosztású, 3. emeleti, 162 m²-es, összesen 5 szobás lakás.
Ideális lehet különböző méretű CSALÁDOKNAK, EGYETEMISTÁKNAK, vagy akár CÉGEKNEK IS!
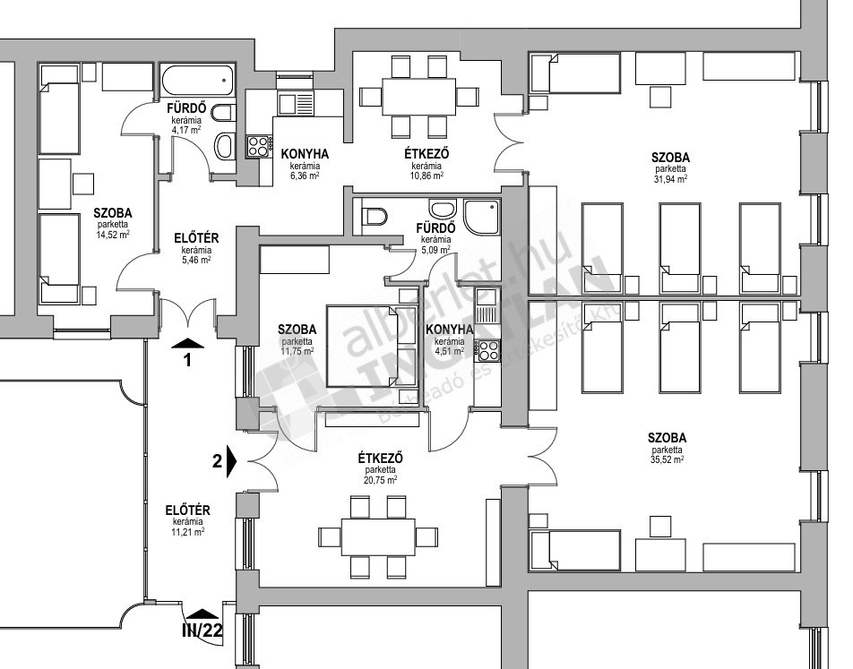
Az ingatlan elrendezésének köszönhetően akár két lakásként is használható.
További lakások elérhetőek!
Közös előtér 11 m2
A házban nincs lift, a felsőbb szintek viszont csendesebbek, és nyugodtabb lakást biztosít.
5 külön nyíló szoba, nagy belmagasság.
A lakás felszereltsége, mosógép, mikró, mosógép, elektromos főzőlap.
Mindkét lakásban tusolós fürdő, és Wc egyben.
1 LAKÁS:
- előtér
- konyha
- étkező
- fürdő
- szoba 32m2
- szoba 14,5 m2
Összesen: 73 m2
2 LAKÁS
- előtér
- fürdő
-konyha
- szoba 11 m2
- szoba 11,75
- szoba 35,5
Összesen: 78 m2
Kiváló közlekedésű, könnyen megközelíthető lakás, néhány perc sétára található az Arany János utcai metrómegálló, így a város bármely pontja gyorsan és egyszerűen elérhető.
A BÉRLÉS jellemzői:
- minimum 1 éves bérleti szerződés
- dohányzás nem megengedett
- beköltözhető 2 havi kaució + 1 havi bérleti díj megfizetése után
- közjegyzői nyilatkozat aláírása
Amennyiben a hirdetés felkeltette az érdeklődését, keressen bizalommal!
Kereső ügyfeleink számára szolgáltatásaink díjmentesek!
Budapesten a VII. kerületben, az Arany János utcai metrómegálló közelében, az Ó utcában, egy világos, jó elosztású, 3. emeleti, 162 m²-es, összesen 5 szobás lakás.
Ideális lehet különböző méretű CSALÁDOKNAK, EGYETEMISTÁKNAK, vagy akár CÉGEKNEK IS!
Az ingatlan elrendezésének köszönhetően akár két lakásként is használható.
További lakások elérhetőek!
Közös előtér 11 m2
A házban nincs lift, a felsőbb szintek viszont csendesebbek, és nyugodtabb lakást biztosít.
5 külön nyíló szoba, nagy belmagasság.
A lakás felszereltsége, mosógép, mikró, mosógép, elektromos főzőlap.
Mindkét lakásban tusolós fürdő, és Wc egyben.
1 LAKÁS:
- előtér
- konyha
- étkező
- fürdő
- szoba 32m2
- szoba 14,5 m2
Összesen: 73 m2
2 LAKÁS
- előtér
- fürdő
-konyha
- szoba 11 m2
- szoba 11,75
- szoba 35,5
Összesen: 78 m2
Kiváló közlekedésű, könnyen megközelíthető lakás, néhány perc sétára található az Arany János utcai metrómegálló, így a város bármely pontja gyorsan és egyszerűen elérhető.
A BÉRLÉS jellemzői:
- minimum 1 éves bérleti szerződés
- dohányzás nem megengedett
- beköltözhető 2 havi kaució + 1 havi bérleti díj megfizetése után
- közjegyzői nyilatkozat aláírása
Amennyiben a hirdetés felkeltette az érdeklődését, keressen bizalommal!
Kereső ügyfeleink számára szolgáltatásaink díjmentesek!
Alapterület 162 m2
Állapot Jó állapotú
Berendezés Berendezett
Közös költség 40 000 Ft/hó
Emelet 3
Rezsi költség 40 000 Ft/hó
Fürdőszobák 2
Fűtés Villany
Kaució 2 hónap
Kerület VI
Kerületrész Terézváros
Kilátás Udvari
Komfort Összkomfortos
Külön nyíló szobák 5
Külön WC Nem
Lift Nincs
Minimum bérleti idő 12 hónap
Összes szobaszám 5
Parkolás Parkoló övezet
Referens Kubesch Gábor (+36709771105)
Szobaszám 5
Település Budapest
Üzenetküldés
Küldjön üzenetet a kapcsolattartónak erre a hirdetésre vonatkozóan







